切换导航
学院概况
学院简介
领导班子
专业建设
专业设置
课程建设
教学成果
教科研创
校企合作
职业培训
师资队伍
特聘专家
师资团队
党建文化
思想建设
组织架构
教工党建
学生党建
职工小家
团学架构
团学活动
社会服务
乡村文旅融合研究中心
社会实践
优秀作品
舞台艺术设计与制作
服装与服饰设计
广告艺术设计
动漫设计
环境艺术设计
校友志念
知名校友
校友图册
返回浙艺
当前位置:
首页
优秀作品
环境艺术设计
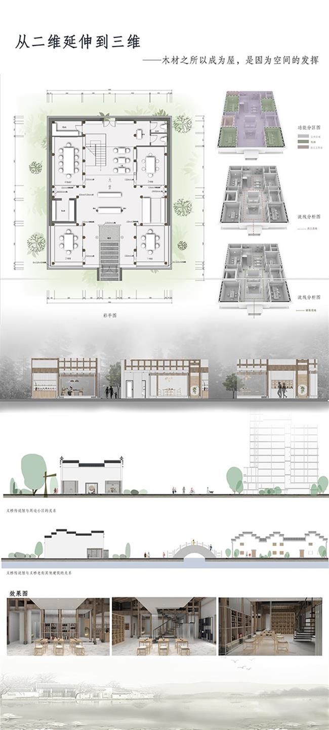
古建改造项目-潺净阁(茶室)
来源:美术系 作者:美术系 时间:2021-11-03 人气:
作品:古建改造项目-潺净阁(茶室)
作者:王卫军、张倩芸、高诗雨、毛晨婷、赵倩茹、张翔蓝
指导老师:周益
上一篇:
《三星纪元》多形态快闪店设计
下一篇:
友情链接
中央美术学院
|
中国美术学院
|
天津美术学院
|
鲁迅美术学院
|
四川美术学院
|
西安美术学院
|
湖北美术学院
|
广州美术学院
中国舞台美术学会
|
浙江美术馆
|
浙江在线
|
浙江非物质文化遗产网
学院概况
专业建设
师资队伍
党建文化
社会服务
优秀作品
校友志念
©Copyright 浙江艺术职业学院设计学院